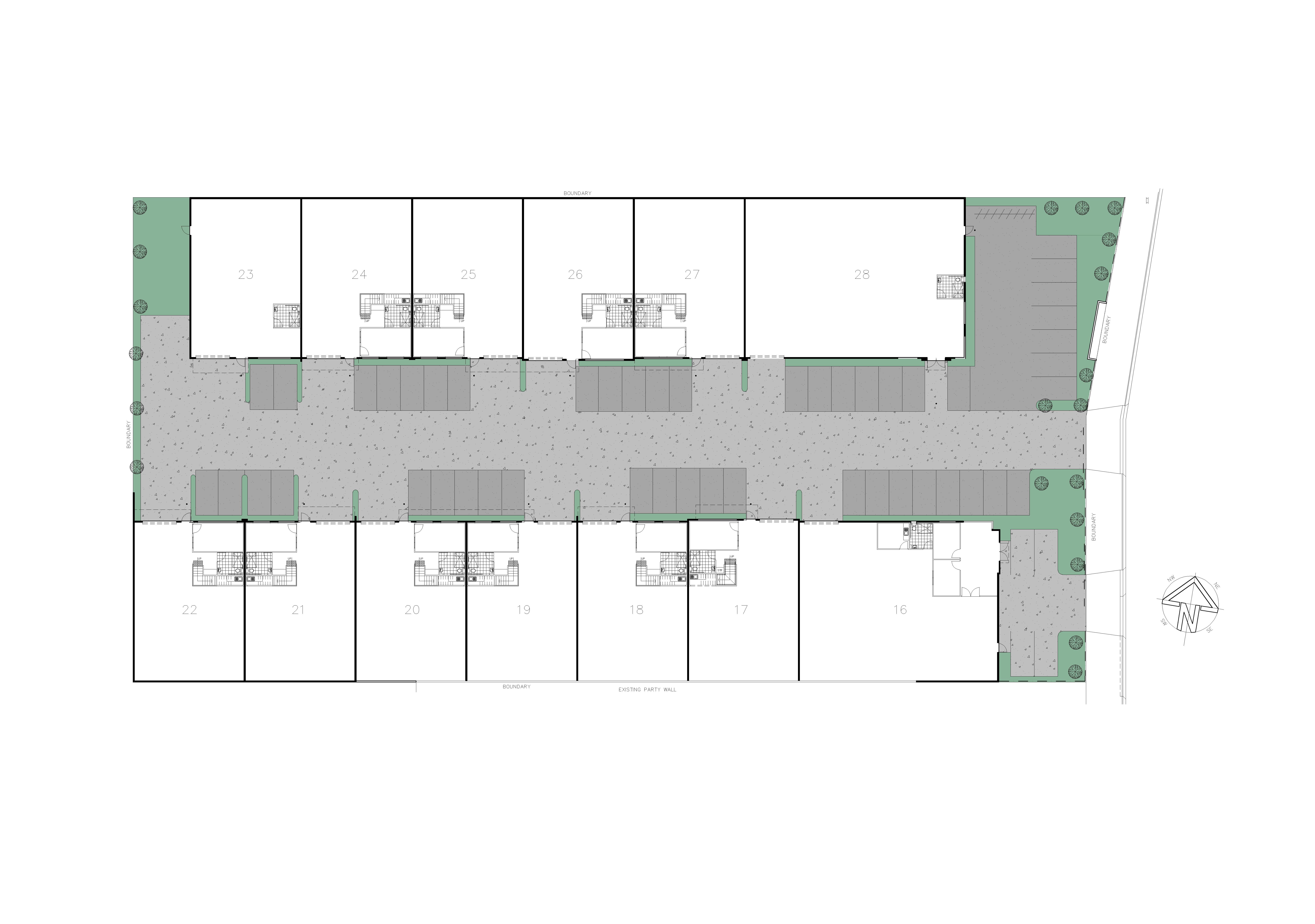
North Plympton Industrial Development
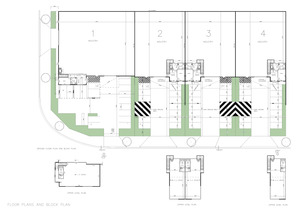
16 Warehouses in Staged Development (8 shown).
Warehouses approximately 220 Sqm + 60 Sqm Office space (each).

Working drawings floor plan (below) *Notes not shown.




Front (Elevation Style) Perspective 3D Render.
Direk Industrial Developments

Approximately 4100 Sqm















Approx 1600 Sqm






Approx 1700 Sqm



Approx 3000 Sqm Total





Dudley Park Industrial Development








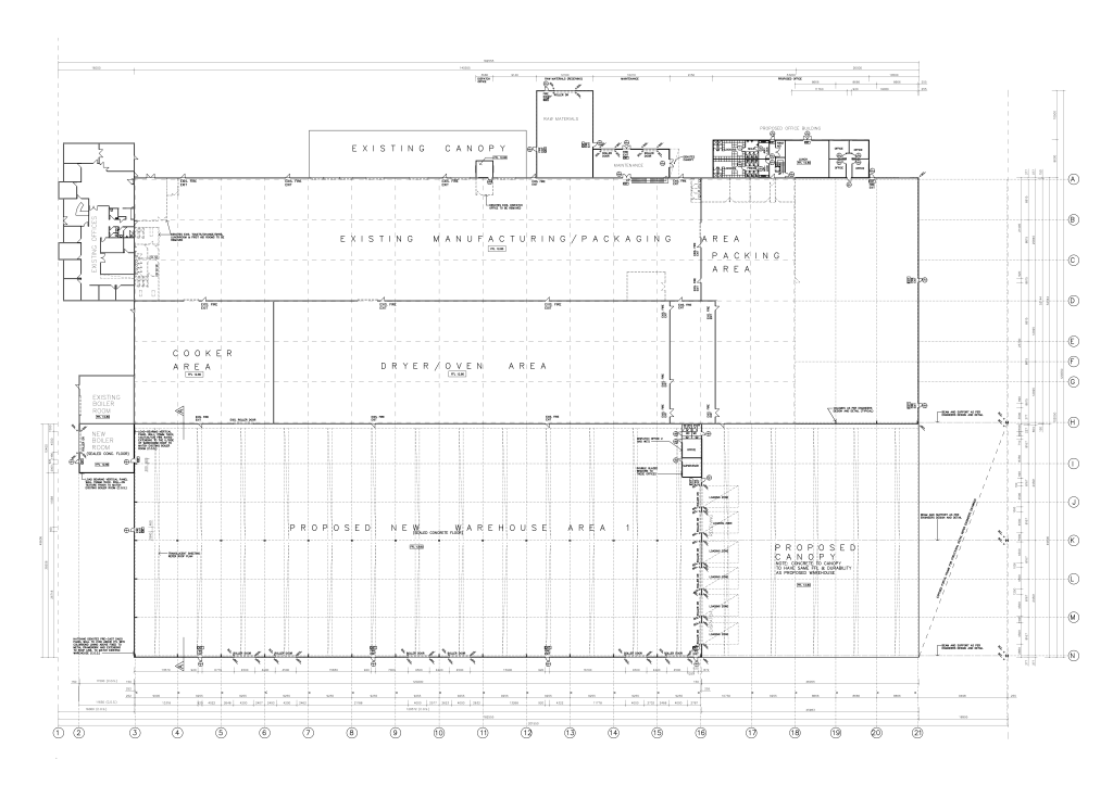
Dandenong (Victoria) Development

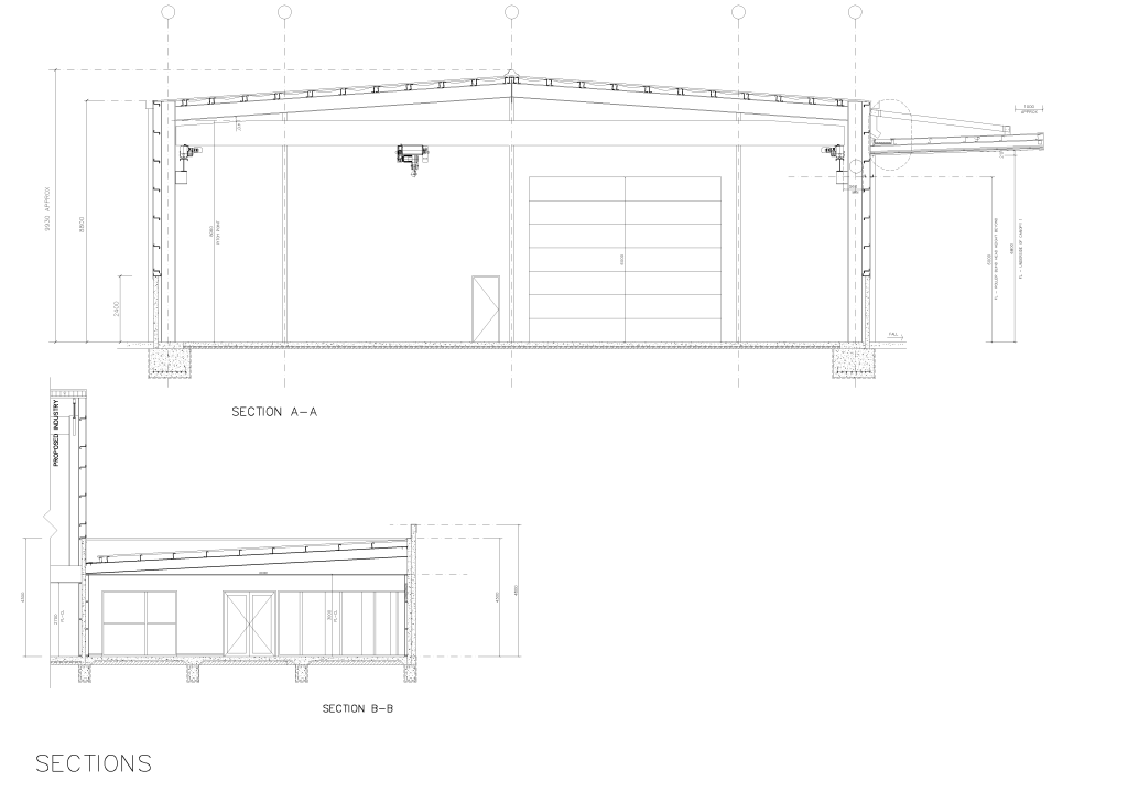
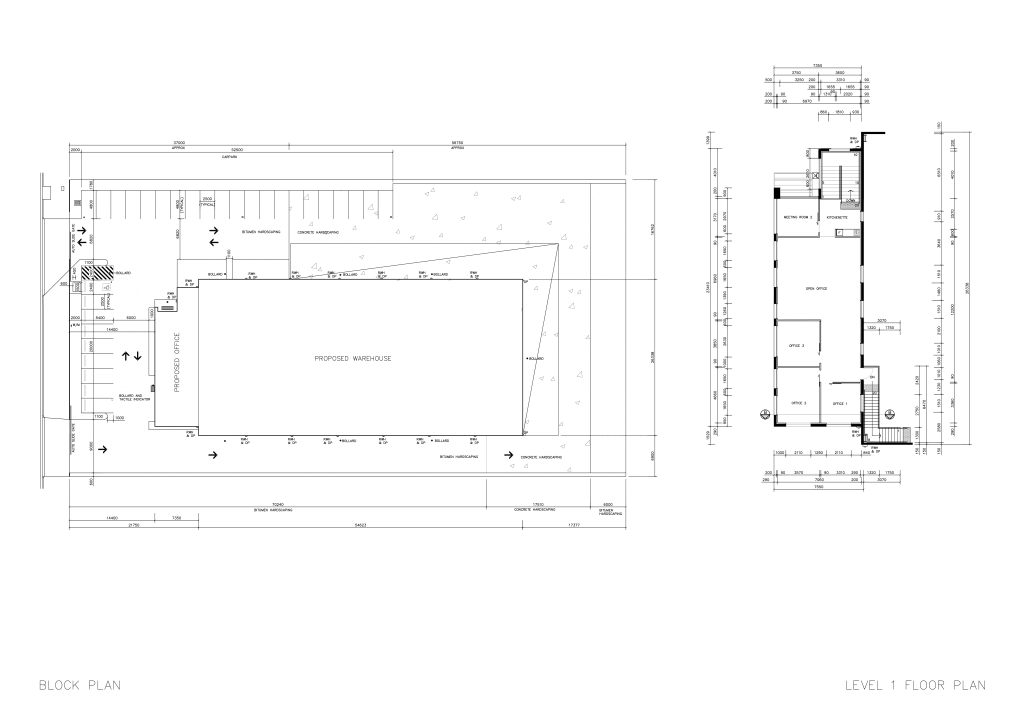
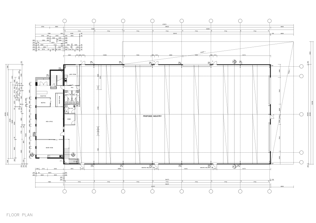
Floor Plan (Working Drawings)
Approx 19000 Sqm

Staged Development Northern Suburbs SA







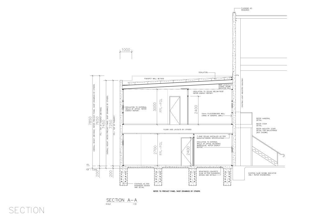
Stage 2 Development (Office) – Block Plan (Working Drawings)




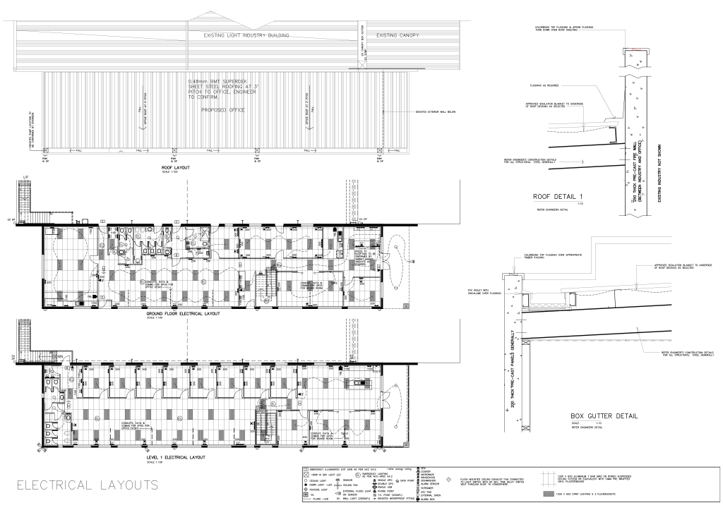
Stage 2 Development (Office) – Electrical (Working Drawings)